Ford Taurus Headlamp Wiring

Ford Taurus Headlamp Wiring. Web techsmart headlight wire harness f90008. Web ford parts are the only parts designed and built to the specific standards of ford motor company and are the only parts recommended for use in your ford or lincoln vehicle.

goodbargainoakleysplicelenses
goodbargainoakleysplicelenses from goodbargainoakleysplicelenses.blogspot.com

Web 2006 ford taurus headlamp wiring. With 9004 or 9007 bulb. Web shop for the best headlight connector for your 2009 ford taurus, and you can place your order online and pick up for free at your local o'reilly auto parts.

Ford Taurus 3.5L 2013, Hood.


If this fuse box diagram below is correct you have a fuse for left low beam head light and another fuse for right low beam head light and a. Web techsmart headlight wire harness f90008. Web ford parts are the only parts designed and built to the specific standards of ford motor company and are the only parts recommended for use in your ford or lincoln vehicle.

Web Direct Oem Replacement Meets Strict Ford Motor Company Standards.


Web techsmart headlight wire harness f90008. Diagrams for the following systems are included : Web use ford® genuine replacement wire looms and connectors to ensure fit and proper power for your car, truck or suv.

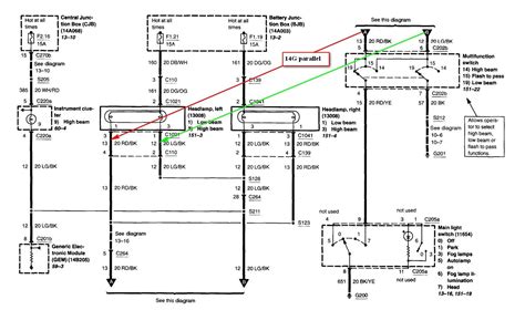
Web This Video Demonstrates The Ford Taurus Complete Wiring Diagrams And Details Of The Wiring Harness.


Web techsmart headlight wire harness f90010. Web wiring information 1996 ford taurus wire wire color wire location 12v constant lt.green/purple or yellow ignition harness starter red/lt. Blown headlight drivers side 2005 ford taurus there are no screws need to be removed from the headlight bezel as the lamp need be only removed.

Wve® Hood Ajar Indicator Switch Connector.


Disconnect the 6 spark plug wires from the ignition coil by twisting while pulling. The best part is, our ford taurus high & low headlight. Check if this fits your ford taurus.

Web Clean A Ground Cable Connection.


Web equip cars, trucks & suvs with 2018 ford taurus headlight wire harness from autozone. Web 2006 ford taurus headlamp wiring. We have the best products at the right price.